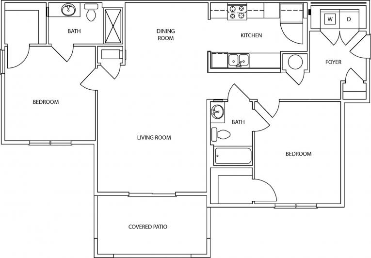
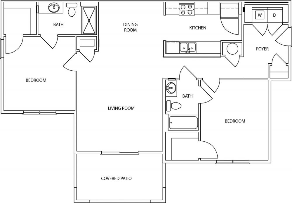
2 Bed, 2 Bath
Rent Starting at
$1,550
Square feet
1218
Our 2 bedroom, 2 bath unit offers a little more privacy, for either roommates or small families with the bedrooms being separate. With a larger-than-average 1218 square feet, there will be more than enough room in this open floor plan. This unit has a full-size washer/dryer, full kitchen appliance package, central AC, gas furnace, private covered patio, and also includes water, sewage, and garbage fees.
*1-month security deposit required. Rent does not include utilities.
Call us today to schedule a tour of this floor plan.











